顶盛体育·(中国)官方网站
关于我们
顶盛官网登录简介
荣誉资质
企业文化
合作伙伴
顶盛官网登录架构
人物风采
顶盛官网登录优势
服务领域
地产开发
房屋建设
市政工程
机电装饰
地基基础与土石方工程
钢结构工程
在建项目
顶盛官网登录新闻
顶盛官网登录新闻
行业动态
安全生产
质量检测
文化活动
产品研发
人力资源
人才理念
职位招聘
联系我们
联系我们
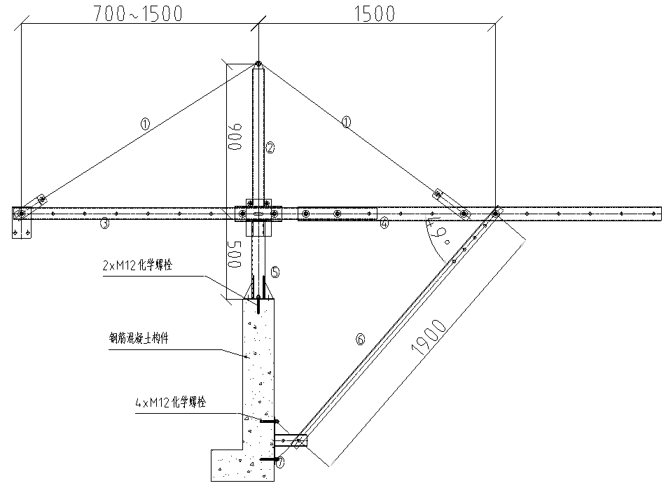
新年伊始,我司喜获一项实用新型专利
2021-01-14
总工办 王畅
好消息!我司又一项实用新型专利《一种建筑施工用无配重吊篮构造》获通过,并成功应用于实体工程。
企业在技术创新及应用方面一直走在行业前列,在公司曾令新总监的带领和指导下,华盛珑悦花园项目部自主创新,为特殊部位的吊篮布置提供一种新思路,并在不断的完善后,最终形成无配重吊篮构造的实用新型专利。
企业发展离不开创新,创新的同时也要保持务实性,创新的点子来源于项目现场,也要用回到项目现场。自主创新是公司的核心竞争力之一,本专利的通过,是 公司在坚持创新道路上取得的又一项重要成绩。
上一篇:2020年深圳技能大赛-建筑信息模型(BIM)技术员技能竞赛-喜传佳报
下一篇:FH-TSTM混凝土温度应力试验仪
地址:深圳市福田区景田北七街民华大厦五楼
电话:0755-88800888
邮箱:shenzhenfanhua@szpan-china.com
关于我们
服务领域
顶盛官网登录新闻
人力资源
联系我们
顶盛官网登录 版权所有
粤ICP备
15078852号
友情链接
|
网站地图
赢博在线
|
爱体育登录入口
|
安博首页
|
赢博集团官网网站
|
飞极速在线手机版
|
赢博线上官网(集团)官方网站
|
九州官网
|
WB平台
|
真人华球体育官网
|