新年伊始,我司喜获一项实用新型专利

2021-01-14王畅

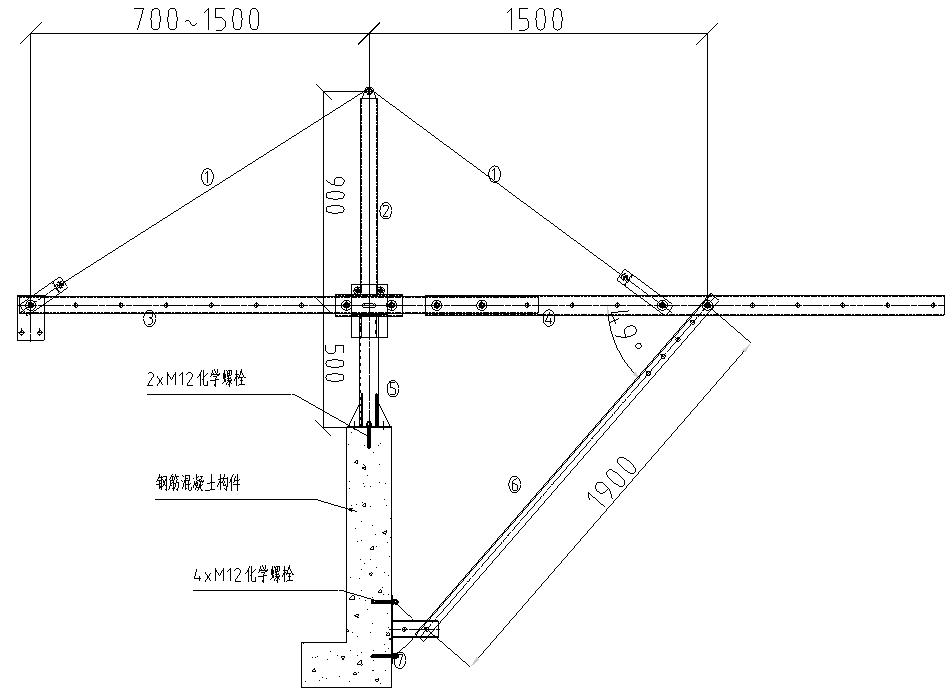
好消息!我司又一项实用新型专利《一种建筑施工用无配重吊篮构造》获通过,并成功应用于实体工程。

1.jpg

企业在技术创新及应用方面一直走在行业前列,在公司曾令新总监的带领和指导下,华盛珑悦花园项目部自主创新,为特殊部位的吊篮布置提供一种新思路,并在不断的完善后,最终形成无配重吊篮构造的实用新型专利。

2.png

企业发展离不开创新,创新的同时也要保持务实性,创新的点子来源于项目现场,也要用回到项目现场。自主创新是公司的核心竞争力之一,本专利的通过,是 公司在坚持创新道路上取得的又一项重要成绩。

地址:深圳市福田区景田北七街民华大厦五楼
电话:0755-88800888
邮箱:shenzhenfanhua@szpan-china.com